長岡駅周辺
南スマイル
問合番号 611651-101
長岡駅周辺
南スマイル
問合番号 611651-101
賃料(月額) 家賃62,000円    共益費3,000円    町内会費300円            
駐車場(月額) 1台無料 追加無し
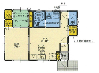
間取り/面積 1DK(洋室6帖、DK8.4帖)  /  44.86 m2(13.57 坪)
向き/所在階 北西向き / 1階部分
築年/構造 2012年3月(平成24年) / 木造2 階建て
所在地 〒940-0081 長岡市南町1丁目3-11
交通 JR信越本線 長岡駅より徒歩で約12分
その他の情報 千手小学校750m、南中学校350m、スーパー800m、コンビニ450m
長岡駅徒歩圏内!礼金不要!駐車場1台無料!都市ガス!
角部屋!バス追焚き有!TVインターホン!温水洗浄暖房便座!IHクッキングヒーター有!
※上記間取り図・方位及び下記内容や写真が現状と相違する場合は現況を優先します。
掲載写真には同一建物の別の部屋の写真の場合がございますので現地をご確認下さい。
契約情報
敷金 68,200円 礼金 なし 更新料 なし
損害保険 15,010円~/2年 仲介手数料 68,200円(税込)借主100%負担
鍵交換費 別途要確認 アパマンショップ24時間安心サポート --
現況 空室 引渡時期 即入居可 取引形態 仲介
備考 退去費用実費精算。保証会社加入必須(保証料初回契約時賃料総額の60%、月額保証料1,200円)。1年未満の解約は違約金1ヶ月分必要。
物件概要・施設・設備
種別 アパート 全2戸 ガス 都市ガス
給湯 ガス給湯器 コンロ IHクッキングヒーター
浴室 シャワー、追焚きあり 冷暖房 冷暖房あり
備考 温水洗浄暖房便座、暖房便座、システムキッチン、シャンプードレッサー、独立洗面台、TVインターホン、角部屋
情報更新日:2026年4月30日 次回情報更新予定日:2026年5月13日
お問合せフォーム

下記フォームに必要事項を入力後、確認ボタンを押してください。

■お名前 ※必須
■電話番号(半角)
■Mail(半角) ※必須
■連絡方法 電話 Eメール
※携帯メールへの返信希望の場合、PCメールを受け取れる設定にして下さい。
■お問い合わせ内容

ひまわり 西長岡店
新潟県長岡市緑町1丁目222番地1
(JR長岡駅 西口 車で6分)
TEL0258-20-5535
小千谷産業 本店
新潟県小千谷市本町1丁目3番3号
(JR小千谷駅 徒歩15分)
TEL0258-82-3000
写真をクリックすると大きくなります。
長岡・見附の物件探しは
https://www.nagaoka.jp/
小千谷の物件探しは
https://www.ojiya.com/